idyllische Doppelhäuser in Eichstetten
Doppelhaushälften mit zukunftsweisender Technologie unabhängig von Gas und Erdöl
Preiswertes Wohnungseigentum mit hoher Lebensqualität ist mit uns möglich, denn neben einer sehr schönen Wohnlage bieten wir eine sehr gute Bauqualität sowie eine solide und hochwertige Innenausstattung.
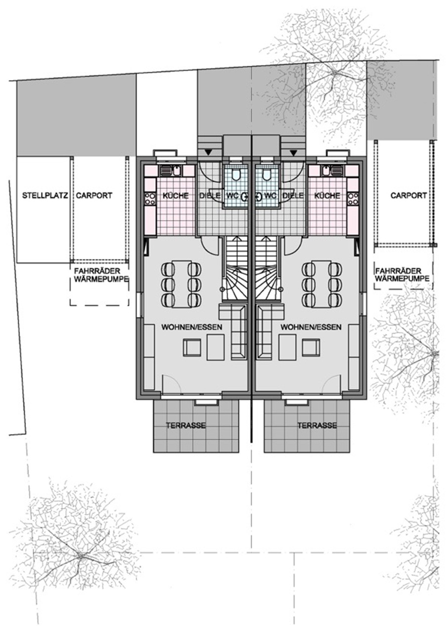
Die Grundrisse zeigen eine wohnliche und großzügige Aufteilung zugleich. Wir haben bei der Detailplanung die umfangreichen Erfahrungen von mehr als 40 Jahren aus dem Bau und dem Vertrieb eingebracht. Dabei wurden viele Wünsche unserer Kunden berücksichtigt, da diese auch bei einem preiswerten Wohneigentum ein Höchstmaß an Wohnwert erwarten.
Die von uns erstellten Häuser verfügen über eine innovative Luft-Wasser-Wärme-Pumpe-Anlage für die Heizung und Warmwasseraufbereitung. Sie kommen somit in den Genuss einer ökologischen und zukunftsweisenden Technologie unabhängig von Gas und Erdöl.
Eichstetten befindet sich am Rand des Kaiserstuhls und ist bekannt für seinen herrlichen Wein und seine vorzüglichen Freizeitmöglichkeiten. Als Familie sind Sie hier gut versorgt mit Kinderbetreuung, Schule, Ärzten und Apotheken. Die Nähe zu Freiburg macht die Lage dieser Gemeinde zusätzlich interessant.
- Doppelhaushälften mit eigenen Grundstücken
- Energiestandard: KfW-Effizienzhaus 70 mit energiesparender Haustechnik
- Zukunftsweisende Technologie für Heizung und Warmwasser unabhängig von Gas und Erdöl





